

使用面积 52㎡,项目坐标上海,完工于 2022 年 9 月。业主为通勤便利,在公司附近购置这套两居小公寓,以极简、干净、明快的空间氛围,让自己从繁忙工作中抽离,回归日常烟火与生活本真。

▲ 平面结构图

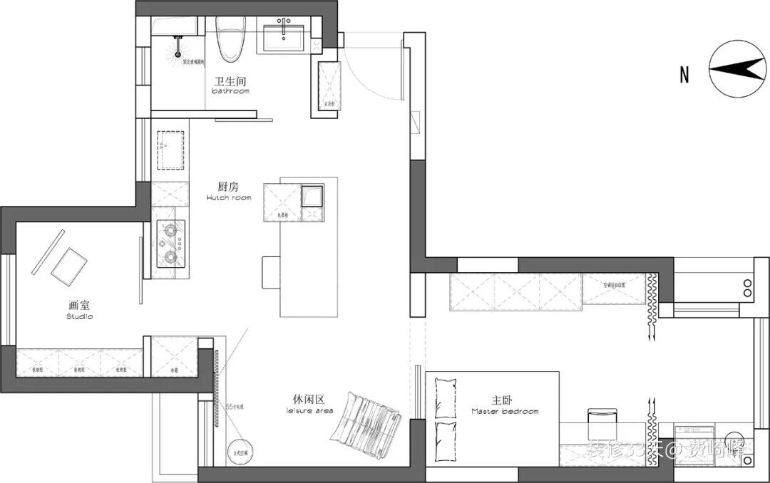
▲ 平面布置图

▲ 入户区域调整原卫生间门洞位置,横向扩容出一整面玄关柜,空间动线更流畅合理

▲ 玄关柜对面打造镜面墙体,有效放大入户视觉尺度;卫生间向原厨房区域拓展,通过墙体改薄优化,进一步提升实用面积

▲ 利用立柜包裹管道与立柱,并与原木餐桌自然衔接,形成块面交织、功能一体的复合区域

▲ 一盏精致吊灯悬于上空,轻松勾勒出温馨治愈的就餐氛围

▲ 厨房采用柜体与餐桌一体化设计,打造围合式岛型餐厨空间,沿餐桌与柜体形成流畅洄游动线

▲ 灶台旁的高柜为餐厨区提供充足储物

▲ 多门冰箱做内嵌处理,在隐形美观的同时,也为餐厨补充了实用储物功能

▲ 餐厨过道,简洁通透,动线一气呵成

▲ 水槽洗碗机,下方柜体也有一定的收纳空间,实用与整洁兼顾

▲ 客厅与餐厨开放式融合,借用原次卧半面墙体与窗洞,省去独立电视墙,空间更显通透开阔

▲ 大面积留白搭配超大懒人沙发与可移动边几,灯光与装饰画成为空间里最温柔的点睛之笔

▲ 卧室面积虽不大,仍在床尾规划出梳妆台,对面则设置一组合体柜,满足收纳与梳妆双重需求

▲ 床铺靠墙摆放,预留出舒适通行尺度;顶面采用无主灯设计,两条线性灯带柔和点亮整个卧室

▲ 整面墙衣柜在床头与床尾处预留留白凹槽,床头凹槽可嵌入小推车,灵活充当移动床头柜

▲ 阳台与卧室之间用纱帘做软隔断,朦胧透光,兼顾隐私与采光

▲ 阳台规划为家务区,集洗衣、烘干、晾晒功能于一体,实用高效
道正网提示:文章来自网络,不代表本站观点。